Schule

Schule in Meschede-Remblinghausen

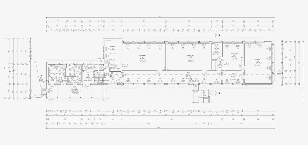
Im Rahmen der anstehenden Modernisierungsmaßnahmen an einer Schule im Mescheder Stadtteil Remblinghausen begleiteten wir ein Projekt, das zugleich ein wichtiger Baustein im Digitalisierungsprozess der Stadt war. Das gesamte Schulgebäude wurde mit modernster Laserscantechnologie und Drohne vollständig digital erfasst. Auf dieser Grundlage entstanden präzise Grundriss-, Schnitt- und Ansichtspläne sowie ein hochauflösendes Orthofoto. Ergänzt wurde die Arbeit durch einen virtuellen Rundgang über IVION, der von den Projektbeteiligten als besonders hilfreich und anschaulich bewertet wurde. Neben der technischen Erfassung und präzisen architektonischen Ausarbeitung konnten auch baurechtlich relevante Fragestellungen frühzeitig aufgegriffen und in die weiteren Planungsüberlegungen eingebunden werden. Die durchweg positive Resonanz hat dazu beigetragen, dass weitere Schulen im Stadtgebiet in die Digitalstrategie aufgenommen wurden.

Auftraggeber

Stadt Meschede

Projektjahr

2024

Datenschutzerklärung zur Verwendung der Websites des Architekturbüros Shoai

Die Datenschutzerklärung beschreibt, wie das Architekturbüro Shoai mit Ihren personenbezogenen Daten umgeht und die Umsetzung des Datenschutzes sichergestellt wird.

Die Datenschutzerklärung gilt für die Websites des Architekturbüros Shoai:

www.architekturbuero-shoai.de

Präambel

Der Schutz der in meinem Architekturbüro verarbeiteten personenbezogenen Daten, insbesondere die Wahrung ihrer Vertraulichkeit, Integrität und Verfügbarkeit, ist meine Pflicht und wird durch mich sowie weiteren Personen des Architekturbüros Shoai regelmäßig kontrolliert.

Erfassung allgemeiner Informationen

Wenn Sie auf meine Webseite zugreifen, werden automatisch Informationen allgemeiner Natur erfasst. Diese Informationen (Server-Logfiles) beinhalten etwa die Art des Webbrowsers, das verwendete Betriebssystem, den Domainnamen Ihres Internet Service Providers und Ähnliches. Hierbei handelt es sich ausschließlich um Informationen, welche keine Rückschlüsse auf Ihre Person zulassen. Diese Informationen sind technisch notwendig, um von Ihnen angeforderte Inhalte von Webseiten korrekt auszuliefern und fallen bei Nutzung des Internets zwingend an. Anonyme Informationen dieser Art werden von uns statistisch ausgewertet, um unseren Internetauftritt und die dahinterstehende Technik zu optimieren.

Cookies

Wie viele andere Webseiten verwenden wir auch so genannte „Cookies“. Cookies sind kleine Textdateien, die von einem Webseitenserver auf Ihre Festplatte übertragen werden. Hierdurch erhalten wir automatisch bestimmte Daten wie z. B. IP-Adresse, verwendeter Browser, Betriebssystem über Ihren Computer und Ihre Verbindung zum Internet.

Cookies können nicht verwendet werden, um Programme zu starten oder Viren auf einen Computer zu übertragen. Anhand der in Cookies enthaltenen Informationen können wir Ihnen die Navigation erleichtern und die korrekte Anzeige unserer Webseiten ermöglichen.

In keinem Fall werden die von uns erfassten Daten an Dritte weitergegeben oder ohne Ihre Einwilligung eine Verknüpfung mit personenbezogenen Daten hergestellt.

Natürlich können Sie unsere Website grundsätzlich auch ohne Cookies betrachten. Internet-Browser sind regelmäßig so eingestellt, dass sie Cookies akzeptieren. Sie können die Verwendung von Cookies jederzeit über die Einstellungen Ihres Browsers deaktivieren. Bitte verwenden Sie die Hilfefunktionen Ihres Internetbrowsers, um zu erfahren, wie Sie diese Einstellungen ändern können. Bitte beachten Sie, dass einzelne Funktionen unserer Website möglicherweise nicht funktionieren, wenn Sie die Verwendung von Cookies deaktiviert haben.

SSL-Verschlüsselung

Um die Sicherheit Ihrer Daten bei der Übertragung zu schützen, verwenden wir dem aktuellen Stand der Technik entsprechende Verschlüsselungsverfahren (z. B. SSL) über HTTPS.

 

Kontakt

Treten Sie per E-Mail mit uns in Kontakt, werden die von Ihnen gemachten Angaben zum Zwecke der Bearbeitung der Anfrage sowie für mögliche Anschlussfragen gespeichert.

Löschung bzw. Sperrung der Daten

Wir halten uns an die Grundsätze der Datenvermeidung und Datensparsamkeit. Wir speichern Ihre personenbezogenen Daten daher nur so lange, wie dies zur Erreichung der hier genannten Zwecke erforderlich ist oder wie es die vom Gesetzgeber vorgesehenen vielfältigen Speicherfristen vorsehen. Nach Fortfall des jeweiligen Zweckes bzw. Ablauf dieser Fristen werden die entsprechenden Daten routinemäßig und entsprechend den gesetzlichen Vorschriften gesperrt oder gelöscht.

Selbstverständlich erteilen wir Ihnen darüber hinaus jederzeit Auskunft über die von uns über Sie gespeicherten personenbezogenen Daten. Gerne berichtigen bzw. löschen wir diese auch auf Ihren Wunsch, soweit keine gesetzlichen Aufbewahrungspflichten entgegenstehen. Zur Kontaktaufnahme in diesem Zusammenhang nutzen Sie bitte die am Ende dieser Datenschutzerklärung angegebenen Kontaktdaten.

Ihre Rechte als Betroffener

Als von der Verarbeitung Ihrer Daten Betroffener haben Sie gegenüber uns als verarbeitende Stelle folgende Rechte:

  • Recht auf Berichtigung und ggf. Ergänzung Ihrer bei uns verarbeiteten personenbezogenen Daten
  • Recht auf transparente Information über den Umgang mit Ihren bei uns verarbeiteten personenbezogenen Daten
  • Auskunftsrecht über Ihre bei uns verarbeiteten personenbezogenen Daten
  • Recht auf Löschung und das Recht auf „Vergessenwerden“
  • Recht auf Einschränkung der Verarbeitung – Recht auf Datenübertragbarkeit
  • Recht auf Widerspruch – Recht auf Widerruf einer bereits erteilten Einwilligung mit Wirkung für die Zukunft
  • Recht zur Beschwerde bei der zuständigen Aufsichtsbehörde für Datenschutz
  • Ihre Rechte können Sie einfach durch Erklärung via E-Mail an info@architekturbuero-shoai.de ausüben.

Wir haben für die Bearbeitung Ihres Anliegens eine gesetzliche Stellungnahmefrist von vier Wochen, welche in Ausnahmefällen um weitere vier Wochen verlängert werden kann. Wir sind bemüht, Ihr Anliegen innerhalb der ersten vier Wochen nach Zugang Ihres Anliegens vollständig zu bearbeiten.

Die für uns zuständige Aufsichtsbehörde für Datenschutz ist:

Landesbeauftragte für Datenschutz und Informationsfreiheit Nordrhein-Westfalen
Kavalleriestr. 2-4
40213 Düsseldorf
Telefon:       0211/38424-0
Fax:              0211/38424-999
E-Mail:         poststelle@ldi.nrw.de

Diese Datenschutzerklärung gilt ab ihrer Bekanntgabe auf unbestimmte Zeit fort. Durch Bekanntgabe einer Nachfolge-Datenschutzerklärung erlischt die Gültigkeit dieser Datenschutzerklärung.

Bekanntgegeben am: 20.05.2022

Impressum

Unternehmensangaben nach §6 Teledienstegesetz

Inhalt des Onlineangebotes

 

Adresse

Architekturbüro Shoai

Thiesbürgerweg 25

45145 Essen

Deutschland

Kontaktdaten

Telefon:          0201 17 18 54 53

Mobil:              0157 72 52 92 80

E-Mail:             info@architekturbuero-shoai.de

Web:                www.architekturbuero-shoai.de

Inhaltlich Verantwortlicher gemäß §6 MDStV

Chorschid Shoai

Dipl.-Ing. (FH) Architektin AKNW

Steuer-Nr.: 112/5120/2905

Verantwortliche Kammer: Architektenkammer Nordrhein-Westfalen

Mitgliedsnummer AKNW: 103046

 

Alle Fotografien dieser Webseite sind urheberrechtlich geschützt – Copyright 2022 www.kd-fotografie.art KD-Fotografie in Dortmund
https://www.kd-fotografie.art